Archie 125 – Designer Series Spouting

Custom sized, designer residential spouting in a smooth box profile.

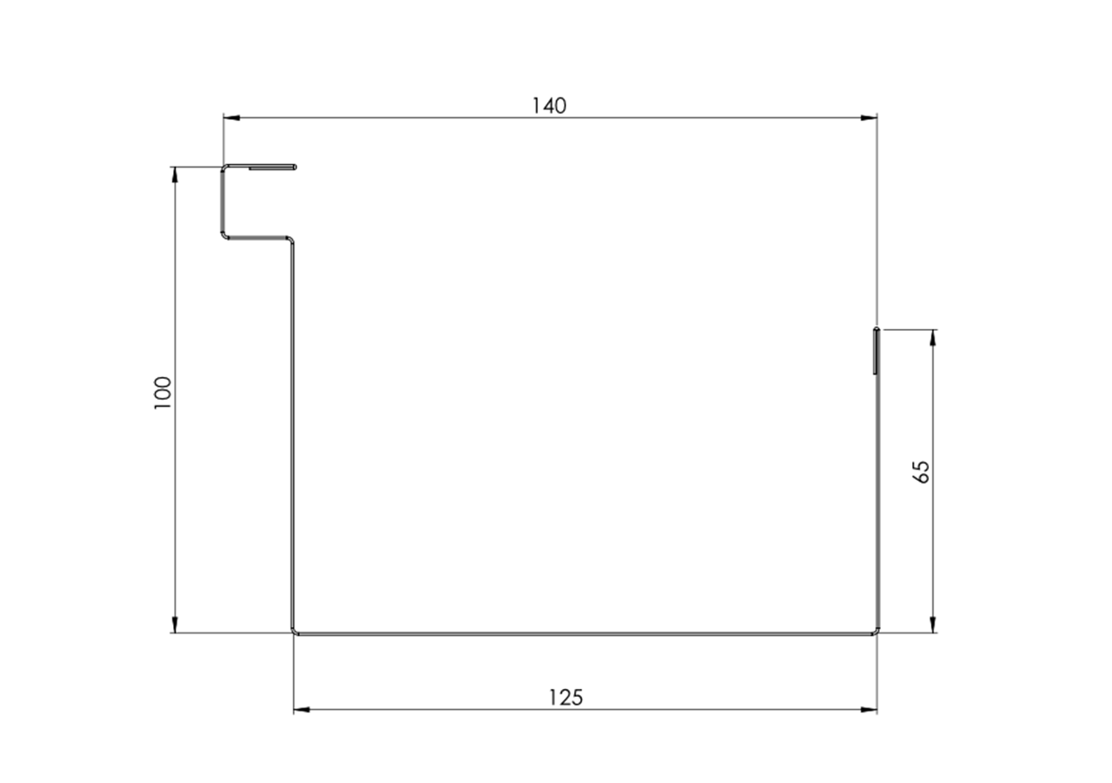
Example shown: 125 x 125mm custom size without bead

Enjoy the clean lines of this designer, box-style residential spouting.

Our Archie 125 can be custom sized to suit a variety of applications. Our standard 125mm size with square architectural bead provides clean lines free from swaging. Use our design or contact us with your design or application to provide the perfect finish to your home.

Specifier Notes

Drawings and spec shown below are for our standard Archie 125 profile. Custom sizes can be manufactured within limitations of material chosen, NZBC minimum size requirements for gutters and “Canning” tolerances.
Note: Internal bracket options are only available with specific size gutters. External brackets can be customised for all sizes,

Scroll down to see images of Archie 125 Continuous spouting on a range of Kiwi homes, along with colour and finish options and downloadable technical files.

Want to know more?
Give us a call:

0800 501 993

125%2BArchitectural%2BBox%2BGutter.jpg

3D Profile - Archie 125

End Profile - Archie 125

Capacity - Archie 125

 Quick Reference Data

Archie 125 - Box Style Spouting

 Cross Section
Capacity

8,125mm²
6,875mm² (With 10mm freeboard)

Downpipe
Size Options

80mm Round
100mm Round
75x55mm Rectangle
100x55mm Rectangle

Finish
Availability

CG Range
Designer Range
Endurance Range
Euro Range
Copper

Material
Availability

MagnaFlow
AlumiGard
Euramax
Copper

Bracket
Types

External

Protection
Options

Snowstraps

Archie 125 Spouting Colour & Finish Options

Our Archie 125 spouting is available in the following colour and finish options. (Click for more information.)

CG Range – Colours

The “CG Range” features our most popular 17 colours, all manufactured from New Zealand made, MagnaFlow pre-painted steel. Colour options for the CG Range are shown below.

Please note, colours shown below are as accurate as we can make them via a digital rendering, but actual colours may vary. For exact colour samples, please get in touch with our team.

Archie 125 - Image Gallery

Technical Information & Downloads

ARCHIE 125
Spouting Brochure

Click image to view and download.

ARCHIE 125
Specification Sheet

Click image to view and download.

ARCHIE 125 Combined
Brochure & Spec Sheet

Click image to view and download.

“Your installer did an awesome job. We have had a few people round who have been very impressed – would highly recommend him.”

— J. & B. Byhrberg, Wellington.

“Great Job!  See the pictures.
Thanks so much!!!  I will be back for more spouting!!!”

— B. Davidow.